Confirmation de commande
Nous retrouvons Daniele de l'entreprise White Allestimenti à mi-chemin entre Fribourg et Venise. Nous lui présentons nos réflexions et nos décisions concernant la cellule. Un choix est fait entre 2 variantes.
La machine est lancée. Cette fois plus de marche arrière possible !
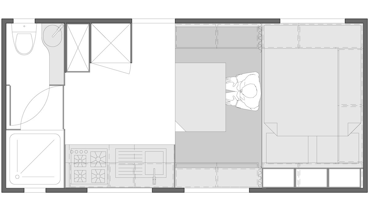
Découvrez ici et en exclusivité le plan de notre futur logement !
